







Download property brochure
Located in Sydney’s Northern suburbs, this spacious, wheelchair-accessible single-level home offers a relaxed lifestyle in a convenient and well-connected location.
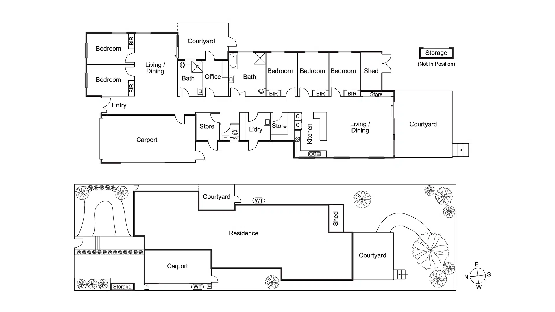
The home features five bedrooms, two living rooms, two bathrooms (plus a separate WC), and a full-sized kitchen overlooking an open-plan living and dining area. This space seamlessly flows onto a large undercover patio and BBQ area, perfect for meals, entertaining, or enjoying the landscaped garden. A shared vehicle is available for local outings, adding extra convenience for residents.
The property is ideally situated near Asquith train station and bus services, providing easy access to the surrounding areas. Local amenities include Asquith Village Shopping Centre and Hornsby Westfield, offering supermarkets, cafes, and specialty stores. Outdoor spaces like Mills Park and Ku-ring-gai Chase National Park provide opportunities for recreation, while Hornsby Ku-ring-gai Hospital is just a short drive away for quality healthcare.
With 24/7 support from Cerebral Palsy Alliance’s highly trained staff, this home fosters independence and inclusion in a supportive community, tailored to meet each resident’s unique needs.
About the available room
Bedroom 2
Images shown are indicative only
Access
Your house mates
Suitable for
Male or female aged 40+, who is not reliant on their housemates for social interaction, someone who prefers a quieter atmosphere and harmonious living arrangement.
Surrounding area
Located in a quiet residential street this home offers the perfect balance of tranquillity and convenience. The area is well-connected, with Asquith train station and regular bus services nearby, making travel easy. Local shops at Asquith Village Shopping Centre and the larger Hornsby Westfield are just minutes away, providing access to supermarkets, cafes, and specialty stores. Outdoor enthusiasts can enjoy nearby parks like Mills Park and Ku-ring-gai Chase National Park, offering walking trails and open spaces. Quality healthcare is also within reach, with Hornsby Ku-ring-gai Hospital less than 10 minutes away.
Chat to our friendly staff today!
"*" indicates required fields
We will respond as soon as possible, between Monday-Friday 9:00am - 5:00pm