







For a limited time only, CPA will pay for your removalist costs when you move into your new CPA SIL home.
Simply arrange your own removalist, and we’ll cover the cost of moving your furniture and belongings into your new home.
Offer valid until 30 June 2026. Applies to items being transported into the home only.
Download property brochure
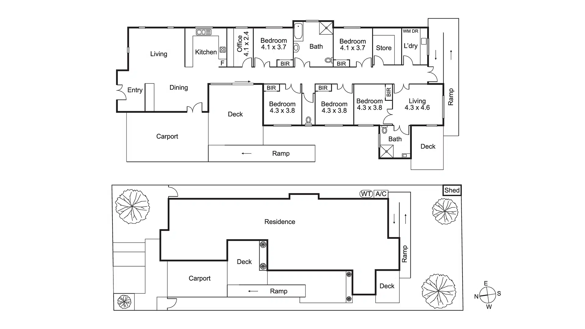
This single-level modern brick home is perfect for individuals seeking Supported Independent Living (SIL). It features spacious, open-plan living areas with air conditioning and heating to ensure comfort year-round. The home is fully wheelchair accessible, with wide doorframes, an outdoor footpath along the street, and a garage with undercover access to the house.
The property offers 24/7 support with staff awake overnight, 2 living areas, an open-plan kitchen and dining space, 2 bathrooms (one with a ceiling hoist), and an additional separate toilet.
The outdoor space is equally impressive, with a secure front and backyard, landscaped gardens, a verandah, and a covered entertaining area with a BBQ. The home is pet-friendly, and a shared vehicle is available for added convenience.
Located near Asquith and Hornsby Train Stations, with a bus service just a minute away, the home offers easy access to public transport. Westfield Hornsby, Asquith shops, and Hornsby Hospital are all within a short drive.
Outdoor enthusiasts will appreciate nearby parks and national parks such as Bobbin Head in Ku-ring-gai Chase National Park, while local pubs and clubs provide entertainment options.
With 24/7 support from Cerebral Palsy Alliance’s highly trained staff, this home offers the ideal balance of independence and care.
About the available room
Bedroom 3
Images shown are indicative only
Access
Living space
Your house mates
Surrounding area
This home offers excellent access to nearby amenities and public transport. Both Asquith and Hornsby Train Stations are close, with a convenient bus service just a minute away.
For shopping, Westfield Hornsby and Asquith shops are within a short drive, while Hornsby Hospital is also nearby.
Outdoor enthusiasts can enjoy local parks and nearby national parks like Bobbin Head in Ku-ring-gai Chase National Park. Local pubs and clubs add to the area’s entertainment options.
Chat to our friendly staff today!
"*" indicates required fields
We will respond as soon as possible, between Monday-Friday 9:00am - 5:00pm