

For a limited time only, CPA will pay for your removalist costs when you move into your new CPA SIL home.
Simply arrange your own removalist, and we’ll cover the cost of moving your furniture and belongings into your new home.
Offer valid until 30 June 2026. Applies to items being transported into the home only.
Download property brochure
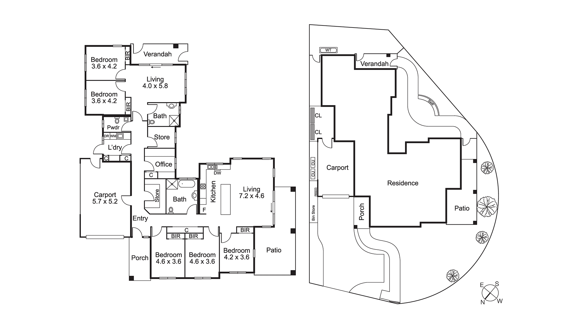
Discover comfortable, accessible supported independent living in the heart of Kotara. This modern single-storey home is thoughtfully designed for ease, safety, and independence, offering full wheelchair accessibility throughout. With five spacious bedrooms and three well-appointed bathrooms, residents enjoy both privacy and shared living in a welcoming environment.
Our home provides 24/7 support from experienced CPA staff, tailored to individual needs while encouraging independence and community participation. Located just minutes from Kotara train station and Westfield, you’ll have convenient access to shopping, transport, cafés, and essential services, including nearby John Hunter Hospital.
Enjoy a secure backyard with a covered outdoor entertaining area, perfect for relaxing or socialising. Pet-friendly and inviting, this home is ideal for those seeking a supportive, connected lifestyle in a vibrant local community. We welcome residents looking for comfort, connection, and a place to truly feel at home everyday.
About the available room
Bedroom 4
Access
Living space
Your house mates
Suitable for
Someone who is relatively independent and likes to access the community regularly with support. A wheelchair user who is social and easy going in nature. Someone who does not mind being part of a busy household.
Surrounding area
Located in a vibrant and well-connected part of Kotara, this SIL home offers easy access to Kotara train station, nearby bus stops, and the popular Westfield shopping centre. Residents benefit from close proximity to John Hunter Hospital and a range of local amenities, all within a bustling, convenient neighbourhood that supports both independence and community connection.
Chat to our friendly staff today!
"*" indicates required fields
We will respond as soon as possible, between Monday-Friday 9:00am - 5:00pm